Stilvoll Wohnen – Rive Gauche
Elegant, Verborgen, Ruhig, Zentral
Mitten im feinen Stadtteil Hamburg-Rotherbaum, erwartet Sie diese außergewöhnliche Wohnung. Sie befindet sich im zweiten Obergeschoss eines um 1875 erbauten Mehrfamilienhauses aus der Gründerzeit (kein Denkmalobjekt) mit insgesamt 9 Wohnungen in einer versteckten, ruhigen Anliegerstrasse. Und nur einen idyllischen Spaziergang durch die Milchstrasse entfernt, führt der Weg vorbei an historischen Häusern und Remisen wo einst Jil Sander und Joop arbeiteten und lebten – direkt zur Außenalster. Ein Wohngefühl wie in Paris. Mit Blick zur St. Johannis Kirche, den lichtdurchfluteten Räumen und den liebevoll restaurierten Räumlichkeiten, verbindet diese Wohnung klassisches Flair mit modernstem Wohnkomfort. Einzigartig, charmant, saniert. Diese stilvolle 3,5 Zimmer Wohnung im Herzen von Pöseldorf verbindet die Eleganz der damaligen Epoche mit heutigem modernen Wohnkomfort. Hochwertige originale, breite Dielen aus siebirischer Eiche, aufgearbeitete originale Türen mit edlen Beschlägen, hohe Decken mit ornamentreich opulentem Original-Stuck, eine hochwertige Einbauküche mit Blick zur St. Johannis Kirche und der Balkon mit Ausblick ins nachbarschaftliche Quartier. Eine seltene Gelegenheit bietet sich, in einer der charmantesten Lagen Hamburgs, in Pöseldof, nur einen Spaziergang von der Alster entfernt in bester Lage zu Wohnen!
Kaufpreis EUR 870.000,-
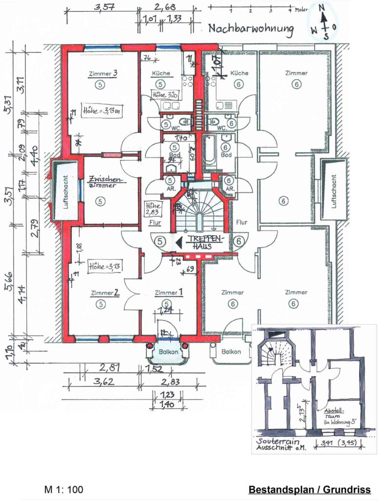
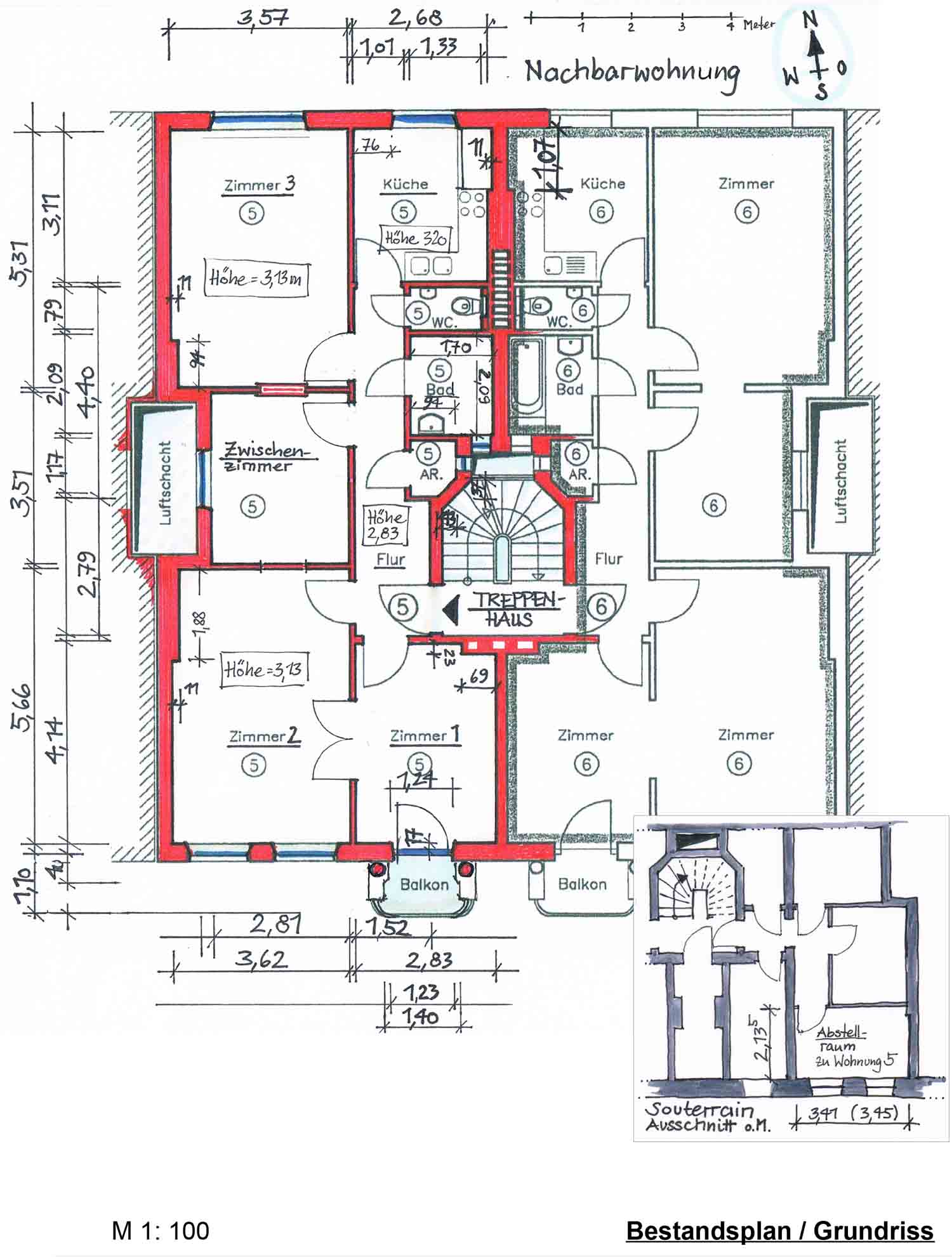
3 1/2 Zimmer-Wohnung
Balkon
Wohnfläche ca. 85 qm
Abstellraum im Souterrain ca. 7,3 qm mit 2 großen Tageslicht Fenstern
Fahrradraum gemeinschaftlich
Lieferung: Einzugsbereit nach Absprache
Hausgeld/ Rücklage: Mntl. EUR 241,65 zzgl. EUR 44,75 = Gesamt EUR 286,55
Beheizung: Gastherme in der Wohnung mit jährlichem Wartungsvertrag. Das Haus wurde bereits für die Versorgung ans Fernwärmenetz von der Verwaltung angemeldet.
Energieinformation:
Ausstellungsdatum 17.10.2025
Gültig bis 16.10.2035
Energieausweis – Verbrauchsausweis
Energiekennwert – 92,4 kWh – C
Warmwasser enthalten – Ja
Energieträger – Erdgas E
Baujahr Wärmeerzeuger 1996
Courtage:
3,25 % inkl. Mwst. für den Erwerber. Mit dem Verkäufer wurde im Maklervertrag die Zahlung der Courtage in gleicher Höhe vereinbart.
