Grün – Wasser – Zentral
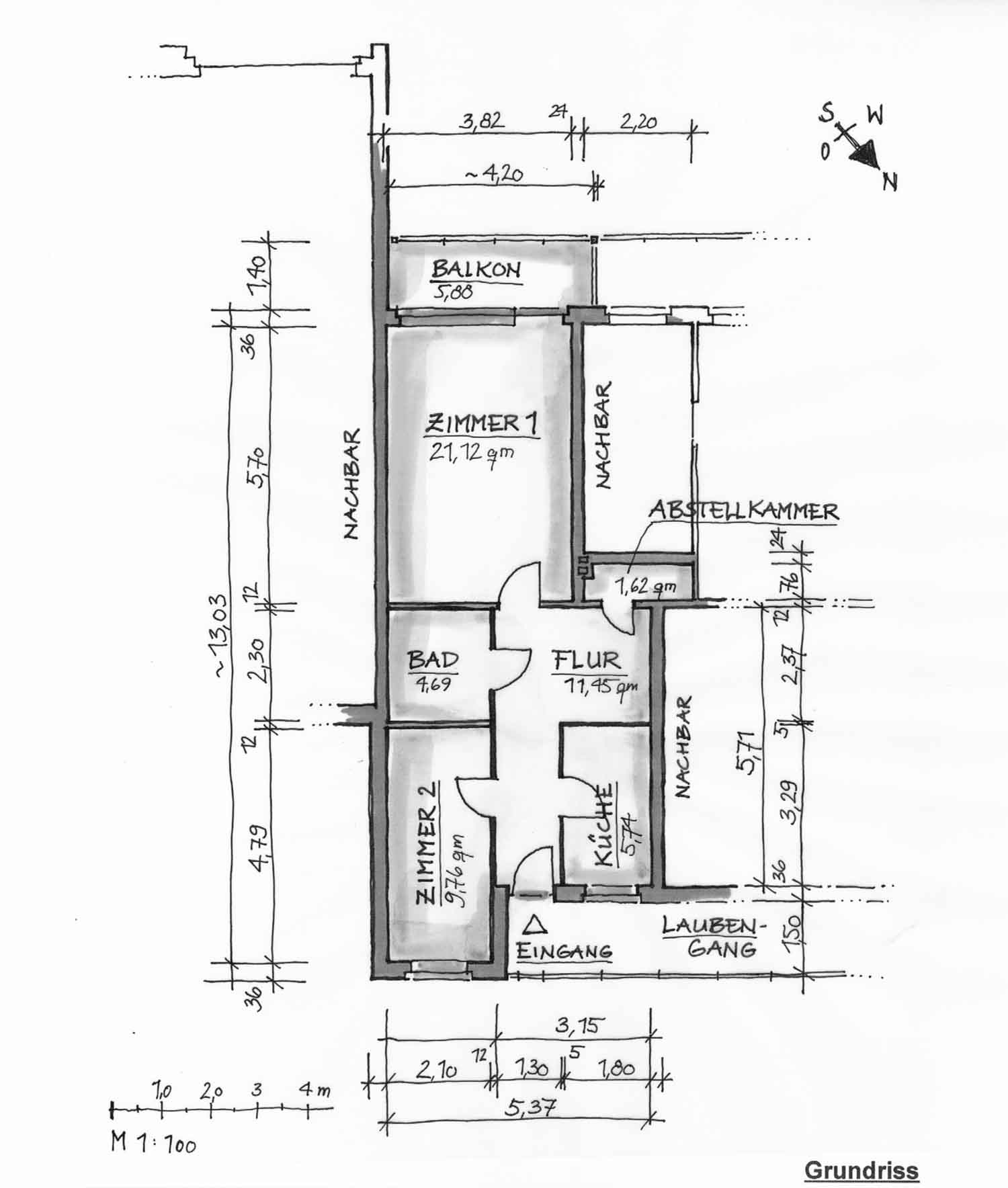
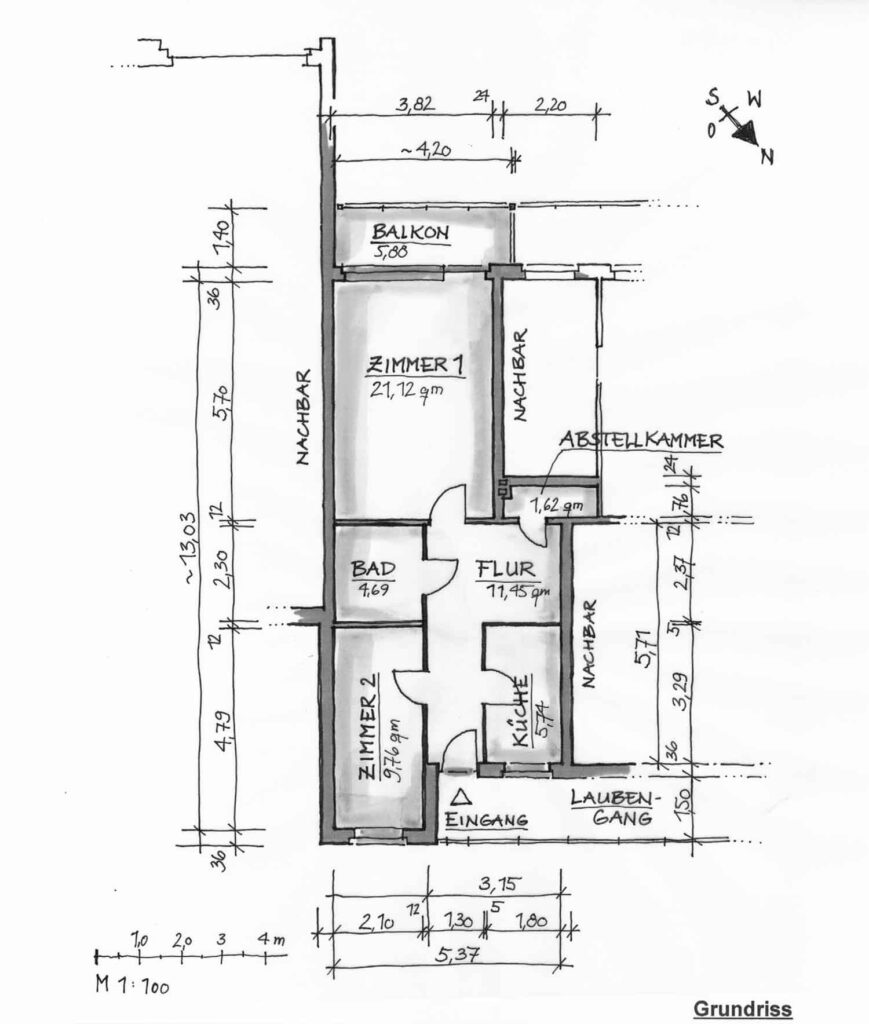
Die Wohnung hat eine schöne Grösse von ca. 57,14 qm mit Balkon und einen TG-Stellplatz. Die Wohnung wird vermietet verkauft. Insgesamt verfügt die sehr gepflegte Wohnanlage über ca. 39 Wohneinheiten sowie einem oberen und darunter liegendem Parkdeck. Der zur Wohnung gehörende Stellplatz liegt im unteren Parkdeck. Die Eigentümergemeinschaft hat schon wesentliche Modernisierungen unter Einbeziehung beratender Fachfirmen ausführen lassen. Es handelt sich um eine sehr gepflegte Wohnanlage.
